Mehrfamilienhaus München-Pasing
Mehrfamilienhaus München-Pasing
Mehrfamilienhaus München-Pasing
Mehrfamilienhaus München-Pasing
Mehrfamilienhaus München-Pasing
Mehrfamilienhaus München-Pasing
Mehrfamilienhaus München-Pasing
Mehrfamilienhaus München-Pasing

Mehrfamilienhaus in München-Pasing

LPH 1-4

"NF48 - Neubau eines Mehrfamilienhauses mit Tiefgarage sowie Rückbau des Bestandes."

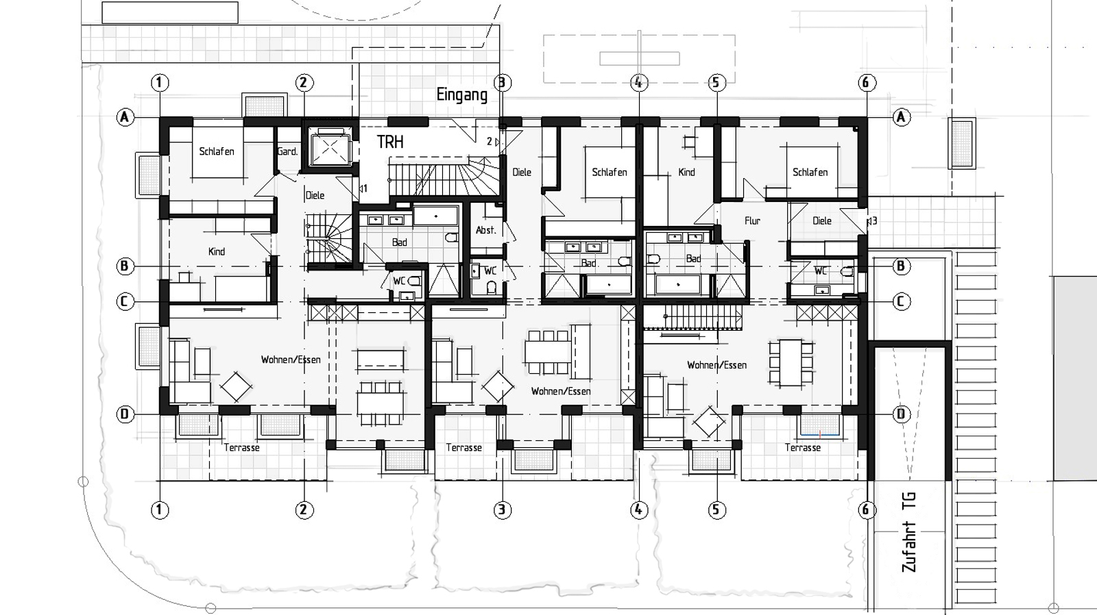
Gegenstand des Projekts ist die Projektentwicklung sowie der Entwurf eines Mehrfamilienhauses in einer ruhigen Seitenstraße in München-Pasing. Der Neubau greift die Formensprache der umliegenden Bebauung auf und fügt sich mit Satteldach und Putzfassade selbstverständlich in den bestehenden städtebaulichen Kontext ein.

Bei der Konzeption der Grundrisse wurde besonderer Wert auf individuell nutzbare, private Freibereiche gelegt. Der Baukörper ist bewusst mit mehreren Rück- und Versprüngen ausgebildet, die einerseits eine klare Zonierung der Balkone ermöglichen und andererseits zu einer kleinteiligeren, maßstäblich angemessenen Wirkung des Gebäudes beitragen.

Im Rahmen der Leistungsphasen 1-4 wurde der Antrag auf Baugenehmigung erarbeitet, ergänzt durch die Erstellung des Brandschutznachweises für ein Gebäude der Gebäudeklasse 3, sowie der Mittelgarage.

Aufgrund der Festsetzungen des Bebauungsplans wurde das ursprüngliche Planungskonzept verworfen, nachdem die Lokalbaukommission die in Aussicht gestellten erforderlichen Befreiungen an die Bedingung der Realisierung EOF-geförderter Wohnungen geknüpft hatte. Die hierfür notwendige teilweise Umplanung des Gebäudekonzepts wurde vom Bauherrn als wirtschaftlich nicht darstellbar bewertet.

In der Folge wurde das Vorhaben nicht weiterverfolgt; stattdessen wurden auf dem Grundstück zwei Doppelhäuser realisiert.

Baugenehmigung (eingereicht): 2021
Baukosten: ca. 2.300.000,- €